Logo
Flowers

Premium 2.5 BHK Homes in the Heart of Nanganallur !

Located at the junction of 18th Street and 3rd Main Road, Nanganallur (Opp. VV Mart), AAnirudh Shree Palace brings you the best of smart city living with spacious, vastu-compliant apartments designed for today’s families.This thoughtfully planned project by AAnirudh Flat Promoters Pvt. Ltd. offers just a few exclusive units, perfect for those seeking comfort, connectivity, and convenience in one of Chennai’s most sought-after neighborhoods.Choose from East and South-facing homes, built to elevate everyday living.

CMDA

Approved

RERA

Approved

Starts from 1.30 Cr

Amenities of  AAnirudh Shree Palace

CCTV

Car Parking

Elevator

Access Card Control System

Potable Water

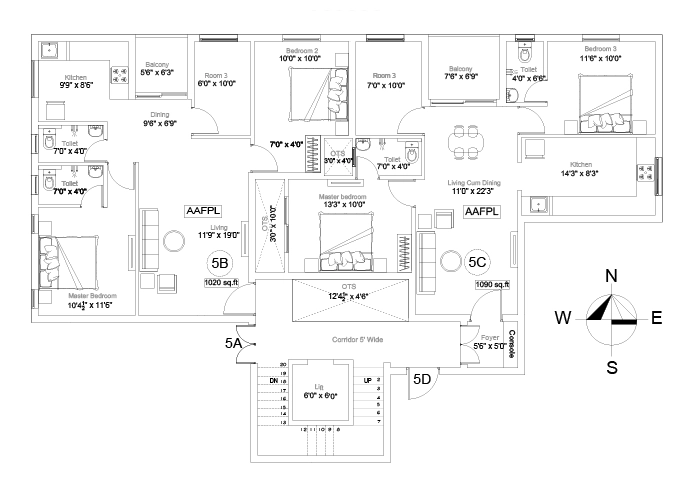
Plan of AAnirudh Shree Palace

Available Flats in AAnirudh Shree Palace

2nd Floor

3BHK Apartment


Flat No

2C

Sq.ft

1195

booked

3rd Floor

3BHK Apartment


Flat No

3C

Sq.ft

1195

booked

5th Floor

2.5BHK Appartment


Flat No

5B

Sq.ft

1020

Available

5th Floor

2.5BHK Appartment


Flat No

5C

Sq.ft

1090

Available

Location Highlights

  • Orchids the International School
  • Saraswathi Vidyalaya
  • St.Thomas School
  • St.Britto's College

  • Nanganallur metro station
  • Pazhavanthangal Local Station
  • St Thomas Mount Metro

  • Chandra Metro Mall
  • Super Saravana Stores - Porur

Our Banking Partners

img
img
img
img
img
img
img
img
img
img
img
img

Contact Us

Need to Enquire about a Flat?

Fill in your details and let our team get in touch with you.


Call

+91 9791112935

Email

info@aanirudhflatpromoters.in

Location

No.4, 10th Street, Lakshmi Nagar, Nanganallur, Chennai, Tamil Nadu 600061

Working Hours

Mon - Sat (10 AM - 7 PM)